FluidDraw® 6

Smart drawing creation

FluidDraw P6 offers many new features and extensive improvements over FluidDraw P5.

Update to version
6.2p from 10/20/2025
FluidDraw

FluidDraw P6 offers many new features and extensive improvements. Existing diagrams created with version 5 can be opened and edited in Version 6.

New ribbon-style menus

Ribbon-style menus are used in the new version by default for a clearer more intuitive interface, fewer mouse clicks and a modern look. For those preferring to keep working with the classic menus, there is an option in the program settings that allows you to switch back to the classic menu style.

New ribbon-style menus

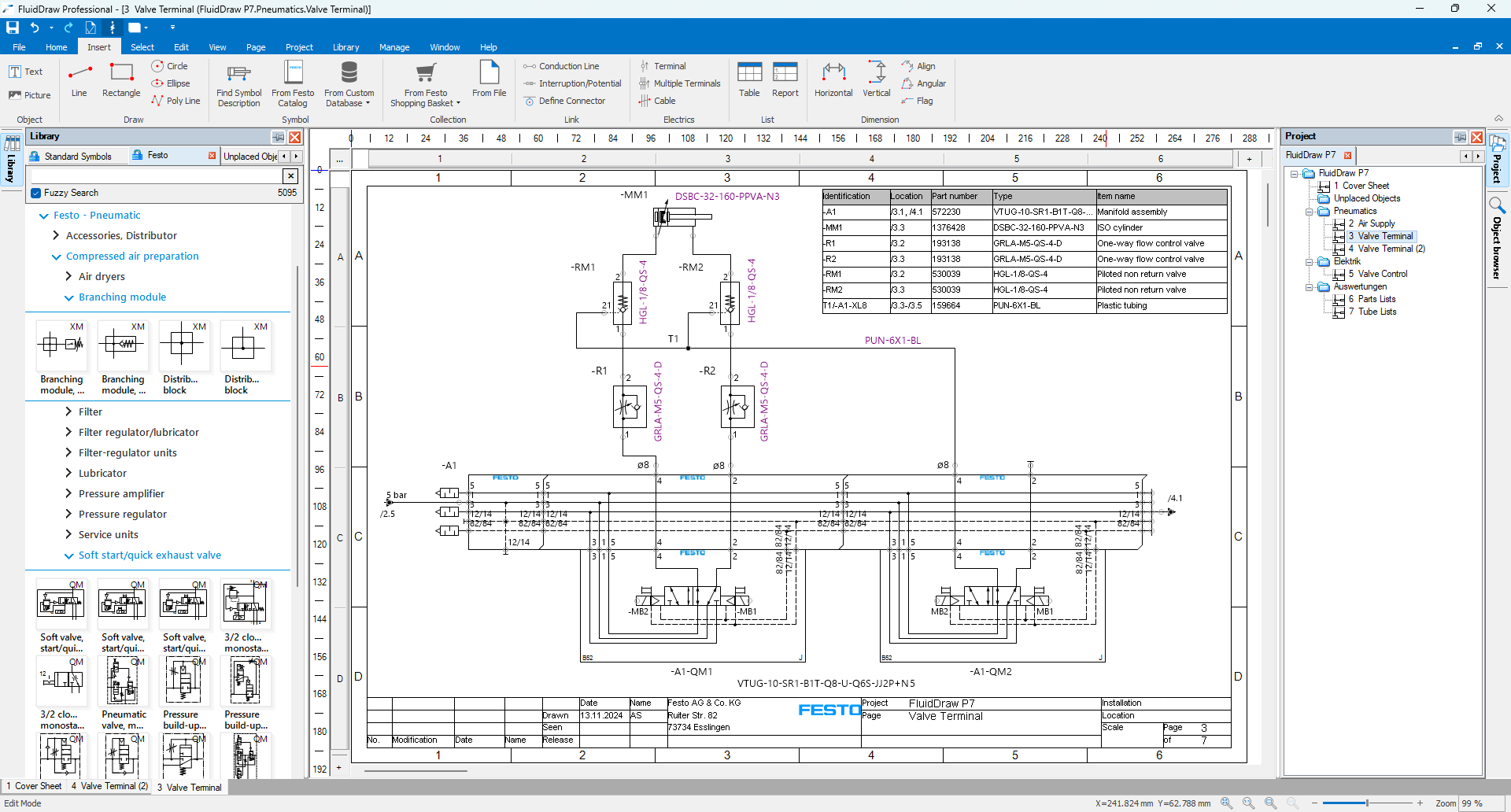
New object concept with object browser

The internal structures of FluidDraw have been redefined so that the program is no longer based on individual, mostly incoherent, symbols but with objects that have a specific representation within the diagram. Instead of entering properties parallel in multiple symbols, it is now possible to maintain the properties for just one object and to only display it in the different representations.

Object browser

New horizontal representation of valve terminals

After inserting a valve terminal in a diagram, it is now shown in the new horizontal representation. As an option, the old vertical representation is also available.

Horizontal representation of valve terminals

Automatic distribution of a valve terminal to several sheets

For a clear presentation of a valve terminal with the connected components a valve terminal can be distributed to several pages via a new context menu feature after it has been inserted into the diagram.

Dialog for distibuting a valve terminal

Direct access to the Festo online basket

Additionally to the shopping baskets from the offline installed Festo catalog, also the shopping baskets from the online catalog is now available in FluidDraw. If Internet access is available, you can access and import the needed parts directly into your diagram.

Menu entry for inserting an online basket

Direct access to Festo online services

The Festo online services, like data sheets or documentation, are now available via context menu of the symbol in the diagram.

Links to other online services can be integrated in user defined product databases. They are then also available in the context menu.

Context menu for accessing the online services

Flexible Reports

The reporting capabilities for a project were greatly improved. In addition to the known reports like parts lists, tube lists, terminal and cable lists there are further predefined reports such as a table of contents and new connection lists. Now every report can be customized and new user defined reports can be created. In addition, every evaluation result can be exported to a text file.

Selection dialog for reports

Edit report data in-place

The result of a report can be edited directly within the circuit diagram. With a new context menu entry, the edit mode can be activated. Within the edit mode, cells of the table can be selected and edited. Additionally, the width/height of columns/rows can be adjusted with the mouse. This direct in-place editing replaces the previous separate dialog for editing the content of a parts list and is now available for all reports.

Editing of a parts list within a circuit diagram

New drawing element: table

In addition to the flexible reports, the new version contains tables with a fixed number of rows and columns for displaying tabular data in the circuit diagram. The data can either be entered manually or copied and pasted from e.g. an office application.

Dialog for editing tables

Export/Import of program settings

The program settings have been revised to make them better to understand and easier to access. In addition, it is now possible to export the current settings and to import saved settings from such a file.

New options dialog

Customizable two-letter designations

The new version uses two-letter designation as per DIN EN 81346-2 for the symbol designation by default. This can be changed for each symbol to assign a user defined designation.

New context menu entry to customize the reference designation

Project templates

Every project created with the new version can be saved as a project template. It can then be used as template for new projects. All project settings, that may be specific for some projects, remain intact. Thus, they do not have to be entered again for the new project.

Menu item for creating a project based on a template

GRAFCET support

The components of the process description language GRAFCET were included in the standard library. The specific properties of an action or transition can be maintained in corresponding dialogs.

Example of a GRAFCET circuit diagram

Drawing frame editor

With the new drawing frame editor, the supplied drawing frames can be changed more easily, or even completely new drawing frames can be created with the assistance of an integrated wizard.

Drawing frame editor

Many detail improvements

  • Better support of modern hardware
  • FluidDraw 6 has access to all memory on 64 bit systems, but also runs without restrictions on 32 bit PCs. In addition, it makes better use of multi-core processors.

  • PDF export with hyperlinks
  • The file export has been improved so that cross references within a project can now be included as hyperlinks in the PDF export. Thus, the cross references within the project can also be followed in the PDF document by clicking the hyperlinks.

  • Extended hatching
  • A second hatching is available for filled objects that can be configured independently of the first one.

  • New object selection concept
  • In order to improve the usability when editing multiple objects in the circuit diagram, a new selection concept was designed, which should make it easier to quickly select and edit all or a specific selection of objects. With this new concept, it should be easier to set properties for several objects of the same type at once.

  • Improved editing of multiple selected objects
  • So far, the property dialog showed only a subset of the common properties. In FluidDraw P6, all available properties are shown in the new options layout.

  • Drawing layers are now part of the project/sheet properties
  • Previously, drawing layers could only be defined globally in the program for all projects. This has been improved so that the drawing layers can now be set and inherited at the project/sheet level.

  • Optional presentation of line jumps
  • Conduction lines that intersect can optionally be displayed with a jump symbol.

  • Project-wide renumbering of designations
  • In addition to the renumbering at page level, the new version allows also to renumber at project level and thus over several pages.

  • Selection dialog when inserting parts lists
  • When inserting a list of components via the menu item Insert => From File, all components contained in the file have always been inserted in the circuit diagram. In the new version, when inserting a list of components a dialog box appears in which you can select which components should be inserted in the diagram.

  • Anchor text
  • If an object is selected in the circuit diagram, all displayed attribute texts are also automatically selected. If the selected object is then moved, the attribute texts are also moved. This behavior can now be applied to any free text through anchoring it to the symbol. Thus, these anchored texts are also selected, with the object and possibly moved, copied or deleted.

  • Support for Proxy-Server
  • If a proxy server with authentication is used for accessing the Internet, FluidDraw will now automatically display a dialog in which the corresponding credentials can be entered. With this, all functions that require access to the Internet, such as the integrated update, are now also usable in a network with proxy server.


Licenses

Note for all FluidDraw P5 users: You need a new license for FluidDraw P6. The license used for FluidDraw P5 is not valid for FluidDraw P6.

All FluidDraw licenses are network licenses. They can be shared on a license server or used locally on a PC or notebook. If you have a CodeMeter USB stick the licenses can also installed there. The following licenses are available:

FluidDraw 365
Annual subscription

The subscription guarantees you access to the latest version. An upgrade to version P7 (and higher) is included as well as updates within version P6.
The license is issued for 12 months and renewed automatically each year if the subscription is not cancelled.

FluidDraw P6
Perpetual license

Use FluidDraw P6 unlimited in time. Updates within version P6 are included.

The licenses are issued in form of a ticket and can be activated directly in FluidDraw.

Order now or try it for free

FluidDraw is distributed worldwide by Festo SE & Co. KG. The link will take you to the corresponding Festo pages.

You have the opportunity to test FluidDraw before you buy it. The link will take you to our download section, where we invite you to download the free demo version of FluidDraw.

Updates

If you already own a license for FluidDraw P6, or a previous version, we provide all necessary updates, to keep your FluidDraw installation up to date, in our download section.